ARTTU Pracownia Architektury
Pomiń nawigacje
start
projekty
konserwatorskie
archiLektura
publikacje
arttu
kontakt
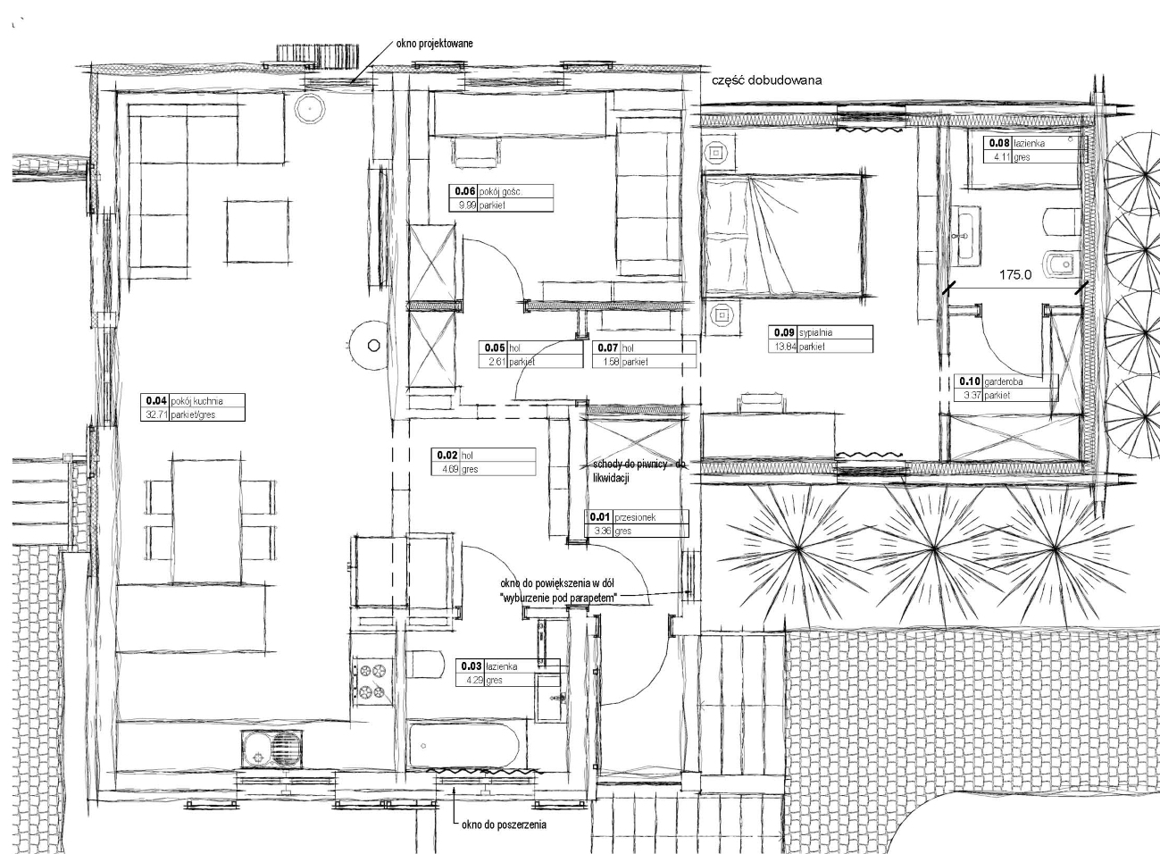
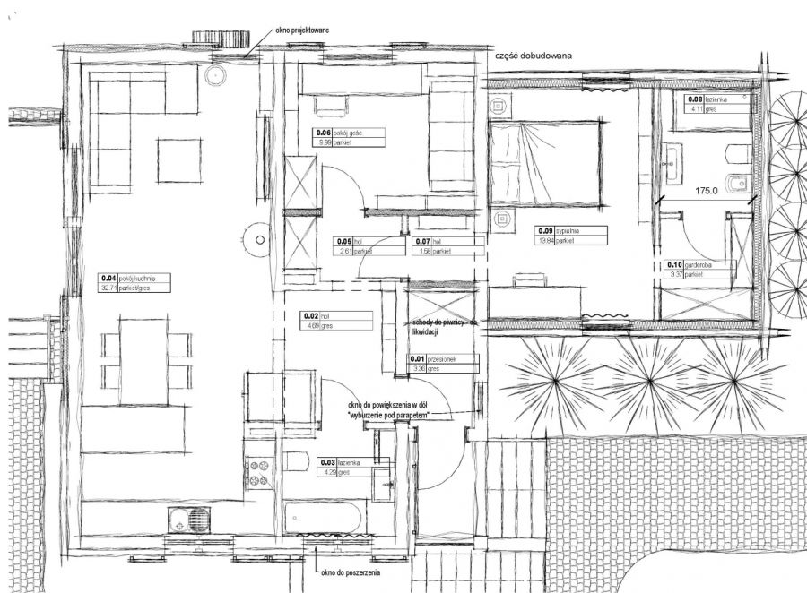
KONCEPCJA PRZEBUDOWY I ROZBUDOWY
Widok z ulicy
Widok na wejście główne.
STAN ISTNIEJĄCY