ARTTU Pracownia Architektury
Pomiń nawigacje
  • start
  • projekty
  • konserwatorskie
  • archiLektura
  • publikacje
  • arttu
  • kontakt
 

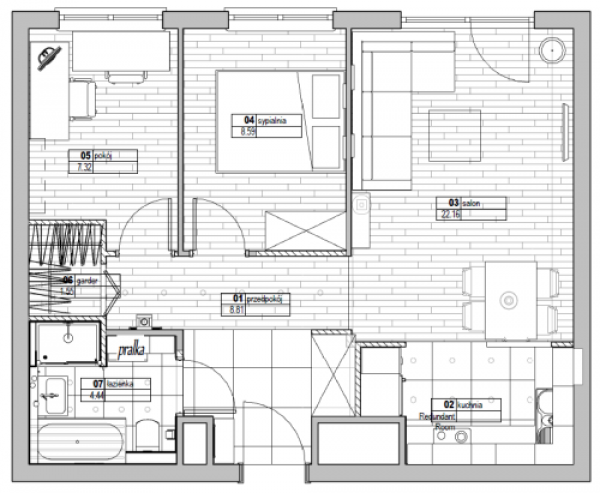
MIESZKANIE WOLA

Mieszkanie około 54m2 na warszawskiej Woli.

Spora przebudowa znacząco poprawiła funkcjonalność mieszkania.

Projekt - 2011

Realizacja - 2012

powrót

P1000659.JPG
P1000709.JPG
P1000711.JPG
P1000717.JPG
P1000732.JPG
P1000740.JPG
P1000759.JPG
P1000762.JPG
P1000775.JPG
P1000777.JPG
P1000784.JPG
P1000791.JPG
P1000793.JPG
po 1
po
po przebudowie
przed
oryginalna aranżacja - brak wyraźnie wydzielonej kuchni, miejsca na szafę w przedpokoju; nieustawna łazienka

o ile nie zaznaczono inaczej wszystkie materiały tu zawarte: © 2001 - 2026 arttu